Appartement
Les Sorinières (44840)
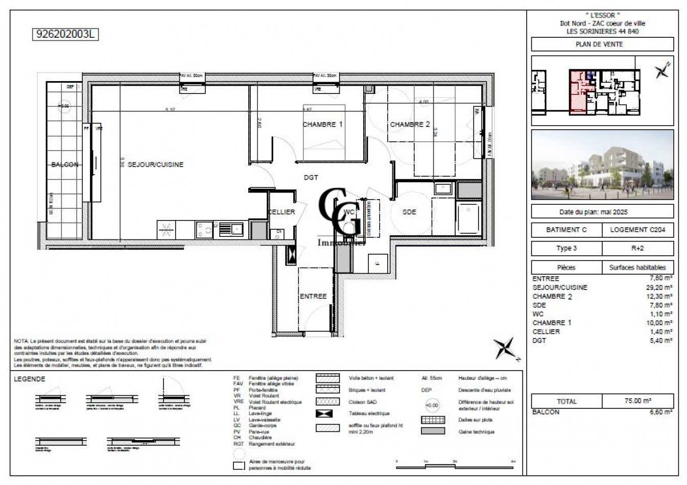
- 75 m²
- 3 pièce(s)
- 2 chambre(s)
- NC
CENTRE DES SORINIERES - Le Cabinet Guémené vous propose cet appartement T3 neuf de 75m². Il se compose d'une entrée, d'une pièce de vie donnant sur une balcon de 6.60m² exposé SUD/EST, d'une cuisine ouverte aménagée, d'un cellier, de deux chambres, d'une salle d'eau et d'un WC.
Libre de suite.
Le bien est soumis aux plafonds de ressources PLS.
Loyer : 770.25€ + 99.13€ de provision pour charges (taxe d'ordures ménagères et entretien des parties communes), régularisation annuelle.
Loyer de base 770 €/mois. Provision sur charges 99,13 €/mois, régularisation annuelle. Dépôt de garantie 770 €. Classe énergie C, Classe climat C Montant estimé des dépenses annuelles d'énergie pour un usage standard : entre 570.00 € et 830.00 € sur les années 2021, 2022 et 2023 (abonnements compris). Les informations sur les risques auxquels ce bien est exposé sont disponibles sur le site Géorisques : georisques.gouv.fr.
Notre barème d'honoraires




















